
Navštíveno 5429x

Chtel bych povesit lcd(42") na stenu a uvazuju, ze drzak nedam rovnou na stenu ale na nejakou desku z pod ktere budou diody osvicovat stenu. (pro ilustaci pridavam foto z netu, nebude to urcite vypadat az tak dobre,ale neco na ten zpusob) a nevím jak postupovat.
Plan je takovy ze stena bude bila, na desce, ke ktere bude prisroubovana tv, bude nejaka tmavsi vinylova tapeta. nejjednodussi co me napadlo je ze necham riznout 4 pekne listy(spise desky) o troustce kolem 20mm, ze kterych udelam ram, ktery bude prisroubovany na stene a na ten ram pak prisroubuju drevotřísku(necha se otapetovat), která bude z kazde strany presahovat napr. 10cm pres rám. veskeré kable potáhnu za deskou, tak nepujde nic videt.
Co si o tom myslíte? popr nějaký jiný návrh? Klidne můžete házet i foto, jak to máte vy, at mám nějakou inspiraci. díky
Původní plán byl jen vymalovat a pri jednom povesit tv na stenu a zasekat kabelaze do zdi. ale nejak se to zvrhlo:-)


08.05.2010, 21:49 |
20bad a co to spíš udělat ze sádrokartonu? bych řek že se stím lépe pracuje a spáry se zatmelí, dá se to dobře malovat, uděláš vlastně falešnou stěnu za kterou bude kabeláž a dodělat tam nějaké osvětlení by taky neměl být problém, akorád si udělat nějakou schovanou přístupovou šachtu na připojování kabeláže atd.
tady na té fotce tu kabeláž musí mít ve zdi jestli se nepletu nevidím žádné kabely, ty by to dost pokazily

08.05.2010, 21:57 |
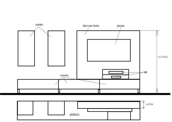
Ales Antonio já to mám udělané přesně jak píšeš a vypadá to skvěle. Posílám foto,ktteré jsem kdysi nafotil v obchodě. Já to mám trošku jinak, deska je po obvodu uzavřená a je do výšky cca 120cm od podlahy, pod stropem mám kastl ze sádroše, kde jsou zapuštěny bodovky. V pondělí ti to můžu nafotit a poslat.

20bad: o sadrokartonu jsem uvazoval,ale nevim jak k nemu pridelat tv, nevim jestli by to ten sadros udrzel. nejsem zednik a s takovym vecma nemam vubec zadne zkusenosti. jinak kabely bych tam taky nemel, budou za tv protazene za tu desku kde povedou az k zemi.
Ales: foto by bylo super. ale presne tak nejak jak píses bych si to představoval.

08.05.2010, 22:26 |
Ales Na rychlo jsem ti to načrtl, ale není to v měřítku a rozměry ber taky pouze orientačně, v pondělí pošlu foto.

zdejsi clen sem hazel rekonstrukci jeho obyvaku kde to delal z sadrose a je tam i trochu videt jak to cca udelat
[ Link ] kazdopadne taky me vsechno co se tohodle tyce zajima, taky bych chtel nejak takhle vyresit televizy(vcetne toho bocniho osvetleni i osvetleni v podhledech)
řešim teď podobnej problém..jak pořešit kabeláž od/do TV (LCD bude viset na Siporex příčce(dneska se tomu obecně říká Ytong/cca 8cm tloušťka) nejelegantnější by mi přišlo řešení vysekání drážky pro husí krk,nebo nějakou lištu(nebo co tak nejlíp použít?),ve který povedou kabely.Druhá varianta by byl nějakej panel,za kterej by se to všechno schovalo.Jak byste to řešili?Je to mikromístnost 3x3,20m takže to svým způsobem představuje další omezení.. :-( Díky za případný postřehy..už 14 dní brousim po netu a hledám nějakou inspiraci.. :-)
ja bych to zasekal do steny. tak jsem to chtel delat ja,ale manzelka si nakonec vymyslela ze tv bude na panelu,tak to schovam pod nej. to ytongu se bude luxusne delat drazka, druha vec, ze je jen 8cm, nevim jak moc mu bude vadit,ze do nej udelas drazku, ktere podle me bude minimalne 4cm hluboka. listu bych nedaval. nevypada to zrovna nejlip
jinak kdybys chtel nejakou inspiraci,tak tu mas par fotek ruznych obyvaku, kde jsem hledal inspiraci ja.
[ Link ]
Antonio: díky moc.. :o) inspirace není vůbec na škodu..asi to půjde do zdi,jak jsem původně uvažoval...(ta tlošťka zdi mě takyx zrovna moc nenadchla,ale co se dá dělat,je to bezmála 40letej panelák)Co tak brouzdám po netu,tak informací tedy nicmoc není ..o fotkách ani nemluvě (google,seznam apod..)čekal jsem že toho najdu víc(av forum,tv freak)takže každý info navíc je plus.. :o)
nemas zac. ted se divam po nejakych led prouzcich za tv a chteji za to neskutecnou palbu... nenapadá nekoho neco levnejsiho nez 20kc za 3,5cm prouzek?
no jeste tam muzes dat zarivku, udela to stejnej efekt jako na prvni fotce co si sem daval a jeste bych to zapojil pres regulator aby sis moch nastavit intenzitu svetla..
jinak ty led se daji sehnat levne,pokud chces jen jednu barvu tak ty pásky nestojej moc
mas nejaky tip kde sehnat za rozumny peniz. staci jednobarevne.
hledej LED pasek
treba tady maj:
[ Link ] nebo zkus napsat clenovy "VladaTDI" kterej to ma tak nasviceny kde to kupoval

11.05.2010, 16:46 |
fredy měl bych na prodej 2 nebo 2,5 m bílejch nalepovacích LED diodový pásek, koupil jsem ho v Bauhausu za 1300 a klidně ho nechám za 900,- jen jsem ho vyzkoušel jak svítí, dá se i napojovat na další...

11.05.2010, 16:48 |
fredy

11.05.2010, 20:11 |
soda trochu se vetru. nenapada nekoho, jak rozumne zapojit, ze kdyz zapnu televizi, zapne se podsviceni automaticky? chci si udelat podsvetleni LCD TV LED diodami a libilo by se mne, kdyby se LED diody zapinaly spolecne s TV.(nejlepe bez toho abych musel do televize).
diody koupim asi zde
[ Link ]

12.05.2010, 11:50 |
stigi Co tak bez jakehokoliv zasahu do TV spinat LED napr. pres hlidaci proudove rele. Pri zapnuti TV se zvysi proud nad nastavenou hodnotu na rele a toto sepne LED pasky.